Descripción
Buzón de Concreto Prefabricado Ø 600 mm – Cámara de Inspección Modular
El Buzón de Concreto Prefabricado DN600 mm es una solución estructural eficiente y robusta para la construcción de cámaras de inspección, mantenimiento y limpieza en redes de alcantarillado sanitario, drenaje pluvial y sistemas de saneamiento.
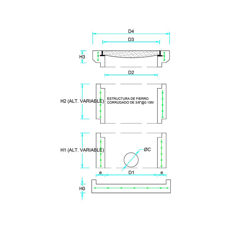
Diseñado con un espesor de pared de 0.10 m y altura variable según requerimientos de obra, este producto cumple con los estándares técnicos de SEDAPAL CTPS-PE-005, lo que garantiza su compatibilidad, durabilidad y estanqueidad.
Especificaciones técnicas:
-
Diámetro nominal (DN): 600 mm
-
Espesor de pared: 0.10 m
-
Altura: Variable según proyecto
-
Fuerza del concreto: f’c = 210 kg/cm²
-
Norma técnica de referencia: SEDAPAL CTPS-PE-005
Componentes del buzón:
-
Solado (losa inferior)
-
Base de buzoneta
-
Cuerpo o intermedios modulares
-
Marco de hierro fundido
-
Tapa reforzada con platina de 1/8” de espesor
Materiales utilizados:
-
Cemento Portland tipo V / HS
-
Agregado fino y grueso
-
Fierro corrugado de 3/8”
-
Agua libre de impurezas
Ventajas del producto:
-
Instalación rápida y modular: Reduce significativamente los tiempos de ejecución de obra.
-
Alta resistencia estructural: Ideal para zonas de tráfico y uso intensivo.
-
Menor tiempo de obra frente a buzones tradicionales vaciados in situ.
-
Compatibilidad total con tuberías de PVC, HDPE y concreto.
-
Fabricación a medida para paso de tuberías específicas según requerimiento del proyecto.
Aplicaciones recomendadas:
-
Sistemas de alcantarillado sanitario urbano y rural
-
Redes de drenaje pluvial en vías públicas
-
Proyectos de saneamiento en condominios, industrias y obras civiles
-
Conexiones domiciliarias con acceso a cámaras de registro
MEDIDAS Y DIMENSIONES:
| MEDIDAS Y DIMENSIONES | |||||
| H0 | 100 | mm | D1 | 600 | mm |
| e | 100 | mm | D2 | 600 | mm |
| H1 | 500 – 800 | mm | D3 | 650 | mm |
| H2 | 500 – 800 | mm | D4 | 850 | mm |
| H3 | 100 | mm | Ø C | A pedido | |



Valoraciones
No hay valoraciones aún.