Descripción
Caja Portamedidor de Agua de Concreto Prefabricado – 1 Pulgada
La Caja de Concreto Prefabricado para Medidor de Agua de 1” es un componente indispensable para instalaciones de agua potable domiciliaria, especialmente diseñada para proteger el medidor de agua, permitir su fácil lectura, inspección y mantenimiento.
Cumple con las especificaciones técnicas de SEDAPAL y la norma NTP 334.081-1998, lo que garantiza un producto duradero, resistente al tránsito y apto para uso en obras urbanas e infraestructura sanitaria.
Especificaciones técnicas:
-
Tamaño de medidor compatible: 1 pulgada
-
Piezas: Caja de concreto, solado (opcional)
-
Materiales:
-
Cemento tipo HS
-
Agregado grueso y fino
-
Agua
-
-
Resistencia al tránsito: Mínimo 2 toneladas
-
Fuerza del concreto: F’c = 175 kg/cm² (17.5 MPa)
-
Normas de referencia:
-
NTP 334.081-1998
-
Especificaciones técnicas SEDAPAL
-
Proceso de fabricación:
-
Dosificación y mezclado controlado para asegurar homogeneidad y resistencia
-
Compactación por vibración y/o compresión mecánica
-
Curado por aspersión para garantizar la maduración del concreto
-
Acabado uniforme, sin cangrejeras, grietas ni porosidades
-
Unión efectiva y continua entre módulos
Beneficios clave:
-
Protección del medidor de agua: Resguarda el dispositivo ante impactos y condiciones externas
-
Facilidad de mantenimiento: Acceso práctico para inspección y lectura del medidor
-
Alta resistencia estructural: Soporta tránsito vehicular liviano y condiciones climáticas adversas
-
Cumplimiento normativo: Fabricada según estándares técnicos nacionales
Aplicaciones comunes:
-
Conexiones domiciliarias de agua potable
-
Proyectos de redes urbanas de distribución de agua
-
Sistemas hidrosanitarios en conjuntos habitacionales
-
Infraestructura pública o privada con acceso a medidores externos
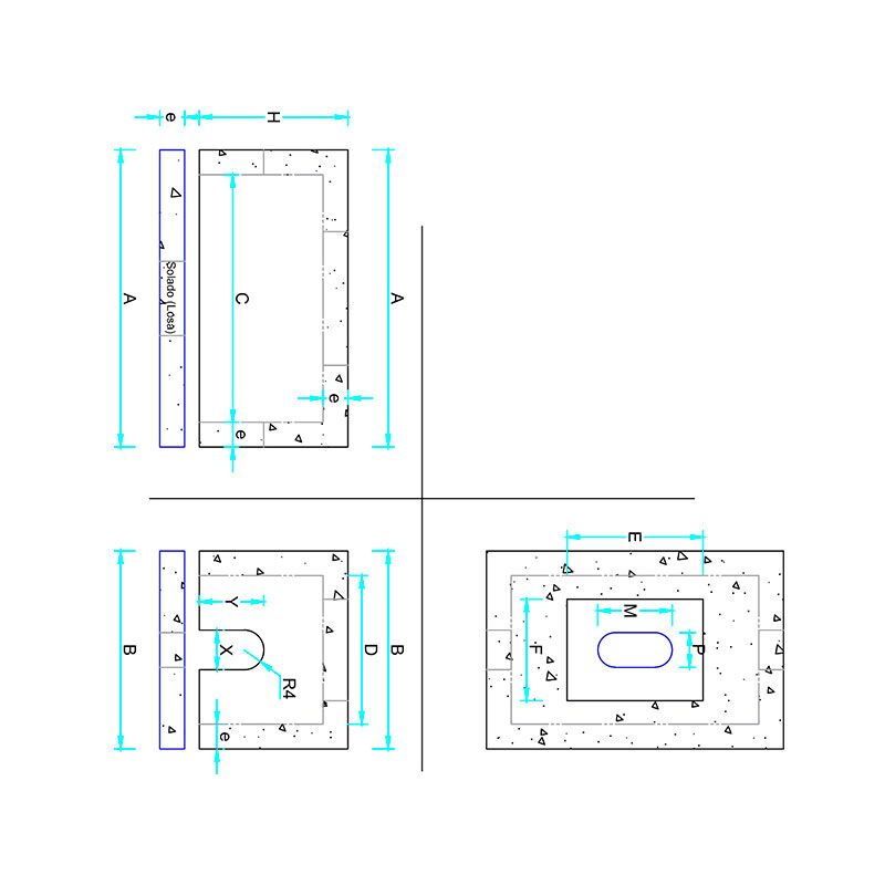
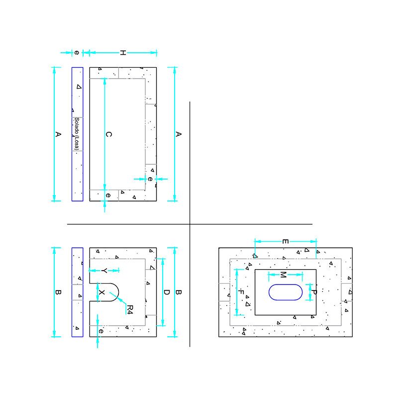
MEDIDAS Y DIMENSIONES:
| MEDIDAS EXTERNAS | |||||
| A | 750 | mm | B | 400 | mm |
| H | 350 | mm | e | 50 | mm |
| MEDIDAS INTERNAS | |||||
| C | 650 | mm | D | 300 | mm |
| E | 400 | mm | F | 200 | mm |
| M | 150 | mm | P | 70 | mm |
| X | 100 | mm | Y | 130 | mm |
| Peso | Caja | 100 Kg | |||
| Solado | 42 Kg | ||||



Valoraciones
No hay valoraciones aún.